
Welcome to this website. My name is Thymen Sieval.
These product are the result of assignments about visualising and presenting concepts that were made up for these works. So the goal was not to design something functional, but to realize and present ideas, with restrictions on the materials that can be used. Many different techniques were used to do so. Apart from that we also had drawing courses in which we used our earlier products to rescale them by including the human scale (by for example adding trees, cars or people).
In this first assignment we had to make a composition of planes. By only using 9 boards of carton and small nails I had to demarcate directions and thereby creating a sense of place. As one can understand this was quite an abstracts assignment. Yet the creative freedom was endles. For my own work I have tried to divide the planes among my composition over the 3 axes. This was done on purpose because it increases the contrast and dynamics in all directions. I wanted to create as many different sized spaces as posible. To do so I tried to limited the use of planes to demarcate a space, by only three elements (one for every dimension). Furthermore I tried to realize an indirect diagonal contour.
While in the first assignment spaces were create by demarcating "air", this second assignment was all about creating places by taking masses away from a block. To begin with, in my cube I wanted to have as many spaces through the core of the cube as possible, because in my opinion it makes people curious to see how this artifact is really put together. After making many sketches, I decided I wanted to have many corridors through the core. I didn't want the holes to end up on top of each other and distributed them irregularly across my cube. Then the idea arose idea to put together a viewing path through the cube arose. Furthermore, by positioning the corridors and removing other (smaller) masses at the outer edges, I tried to create an upward spiral through the cube. For the colors I wanted to increase contrast so every dimension got a different color. Furthermore, to put focuss on the inside I used white colors here, and darker colors on the outside.
The assignment here was to conduct visual research into the relationship between form and counterform. We did this by setting up an interior space with place-defining, guiding and limiting elements. This allowed new spaces to be created. The masses respectively consisted of predetermined volumes. Before starting the assignment, it was already clear to me that I wanted an extra storey (loft) and a clear dividing line within the unity of my composition. One part of the interior had to be high and relatively enclosed, the other part lower and more open to the outside. In such a way also a boundary was created between some public space and a more private space. Finally, I then started looking at how the choice of tone could enhance the readability of the loft enhance it. Therefore, I chose to give the same objects entirely the same colour give them. To increase the contrast, I placed the black tables relatively close to the open side. The red cabinets against the white walls and put the grey spaces on the white upper space
The brief given was to conduct visual research between form and counterform in a predefined space. Through the addition of colour, the composition was then materialised. The model had an urban planning scale of 1:200. The predefined defined space consisted of 3 building blocks of 6 storeys high. Passing through roads one could leave the square. The space that could be built on lay within the trapezoid formed by the 3 building blocks and a road on the open side. It struck me that in this assignment, the composition actually looms large and partly from the already placed building blocks. I spent a very long time thinking about the composition. But each time I wondered whether it would do most justice to the character of the square. This is actually how I arrived at the design that is there now. I tried as much as possible to follow the character of the square, but to add a playful variation and thus more dynamism to it by using the slopes of the masses and the mirror shape on the ground plane. In addition I noticed that when a building is placed in a pond it contrasts even more and thus enhances it form. With this last assignment the first course was finalized. As one can seen during the course the complexity and creative freedom increased over time. This process was continued in the second course (OV2)
These assignments continued the work of the previous assignments, however, here more materials were provided which increased the creative freedom. In special students were asked to take one of their assignments and translate it into a digital designed (rhino) real-life sized object. I choose to make a beachclub.
In this assignment the materials of the construction were basically free to choose and compose. Each material has a different colour and texture with a specific effect on the space formed. Again, constructing the connections of the different elements was an important theme, but this time the assignment was particularly concerned about the detail and the (degree of) expression of it. The way in which that connection is then executed, however small in size, is often a determining factor the image of the construction. The main theme, which I have used in determine detail and expression in this composition, is the particular contrast of colour and material. For instance, a mirrored surface is often thin and of light colour, rather than thick and dark (like the volume in the composition). In contrast, the slabs (wall and floor) are detailed with white rough surfaces with much detailing in the thin side rather than in the large plane. The linear elements form a transition between these elements In addition, I like a composition with minimalist looks. A seamless and light connection between the different elements. Since in practice connections between materials are often being articulated by extra volumes imposed from a constructive point of view. Yet, in my composition I tried to keep the connections as "clean" as possible. This can especially be seen in the (seamless) cube.
This time, the assignment for us was to delve specifically into the wall (as part of spatial compositions. The construction and materialisation of this were to be individually fill in. In particular, we were instructed to make designing the wall to make use of Fibonacci's series. As there are numerous possibilities for constructing the wall to construct, I started by drawing up a number of principles that I wanted to reflect in my design. For example, I wanted a wall that had a lot of mass at its core, becoming lighter and smaller towards the outside lighter and smaller so as to radiate a certain masslessness. In addition, I wanted a wall with a passage from one side to the other and I wanted like a staggered wall because these both create a lot of dynamics and curiosity curiosity. In addition, I thought it would be nice to use Fibonacci's size system in such a way that emphasise the verticality at this core and at the ends the horizontality. I tried to do this in such a way that even in the views a form of the golden ratio would be visible in the views. In terms of materialization, I tried to look for a rare material, in terms of color, reflection, and structure. In doing so, I found the contrast between the surface of the planes (reflecting) and there sides (black) This argument also made me decide to construct the base plate in matt black.
The assignment was to make 3 drawings by artist Jan Schoonhoven, relate to one another in a collage. Actually, this was the assignment in which we were able to combine all the knowledge of the past lessons and use it in a slightly different set-up. By using the different patterns, contrasts and coherences of materials provided we could reinforce or rather connect them. I started searching through the many magazines I had brought with me. After time, I had found enough images that fitted a theme but also had similar patterns and use of colour. The lines of the patterns are clearly replicated by the images from the magazines. By then cutting these out in a handy way and thus combining them, it was it was possible to relate the whole to each other. The round shape at the bottom center was a nice addition, giving an innovative look to the collage, although it does fit well in the circular orbit of structures that the collage features.
The OV3 course took a different approach. Altough the products from the previous courses guided as an input for this course, this course was fully digital. The main assignment was to create a parametric model (in rhino and grasshopper), to design an exhibition for a sunken museum (Esher) square. Important steps in my design process were the formulation of formulas for the dimensions of the masses and the height of the terrace. For the spatial composition, and hence sightlines, the amount of natural light was the most important guiding theme in this design. I wanted to give visitors a unique spatial experiences that different when one walks trough it. As if one walks trough a real life sized esher artwork. On top the design temps people to have a drink on the terras and have a look what is down there, halfway people really experience the spatial structure and on the lowest level people can visit the exhibition itself. Thereby the natural lighting creates extra emphasis on the artworks themselves.
The fist design course was all about creating vision. Not just a vision, but a guiding theme, that would help you make design decisions during the process. In specific the relation between the house and its environment should be represented in your vision and thus your design. The aesthetical quality of the design was therefore subordinate. The goal was to create an integral design of a dwelling in its natural environment. The brief here was to create an Bed & Breakfast combined with a private dwelling. After the students set their guiding theme, they had to do studies on the location and the layout of the possible floor plans. Four main strategies as an guiding theme could be chosen: landmark, hidden, spread out or adjusted to the environment. My design can be seen as a landmark, as it is not only literally (because of its prominent location and height) but also figuratively (in the choice for materials) a landmark. Furthermore, the main design principle that I used was the prospect refuge theory of Jay Appleton. This theory explains that people have a psychological need for shelter (small, dark, warm, save) in their back and a view in their seight (open, light, cold, wind, movement). In my design I tried to convert this principle in every design decision. For example in the choice for location, sections drawing, choice for materials etc. For my presentation I made a scale model as well, as can be seen in the picture.
This assignment was the final assignment of my first year in Architecture. It integrated all the
disciplines of construction, climate design and architecture. The brief was to construct a
"watertaxi (named roboat)"
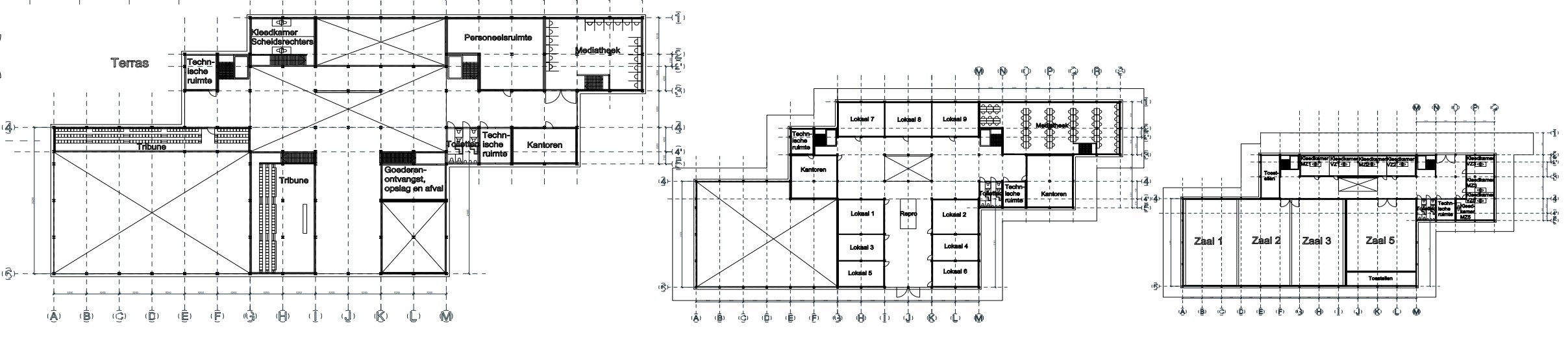
stop, combined with a maintenance and exhibition center on the site of a formal navy basis. This
design
assignment was the first which I really felt I was able to convey my vision into a working integral
design. It was rewarded with an 8.
Safe haven: safe area; more generally: place where one feels at home. Especially, as a
military term for home base→
Feeling at home, being safe, on the site of the naval yard, military and imposing because of the
size of
buildings, columns and overhangs. "Safe Haven" is literally what its name purports to be.
Paradoxically
the glass facade seems to support the building from the outside and displays vulnerability. On the
contrary, in the inside a sense of security prevails due to the solid and visible construction.
Modern
and elegant from the outside, grand, sturdy and safe on the inside. In addition, safe haven is a
reference to a boathouse. Through the shed door towards the water and the size and structure of
buildings. The height difference in floors quay and jetties provides many views of the water as well
as
the mooring. The waiting room, boat shed and control room are all located on the waterfront, and
together with the other spaces they form an efficient organization that puts ease of use first.
Thanks
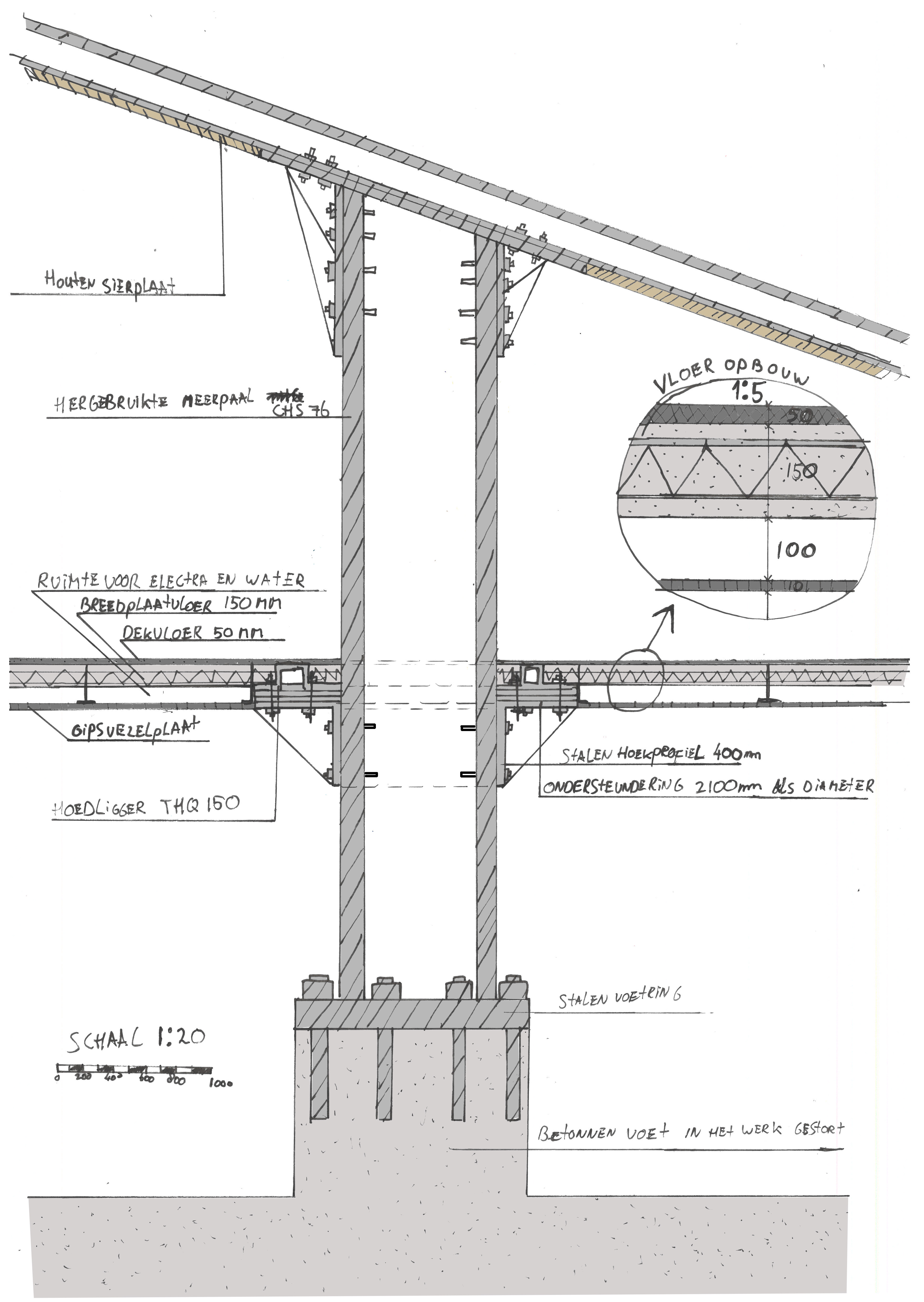
to the special second-skin façade with solar panels and the buffer function of auxiliary spaces, the
building, in combination with the heat pump, is energy neutral despite its glass façade.
Sustainability
is also reflected in the steel supporting structure, which consists mainly of reused mooring posts.
The
design merges busy city and shipping traffic with the tranquillity of the park. This was done by
using
as many of the site's existing axes as possible, enhancing the spatiality rather than disrupting it.
The
slopes of the buildings also provide special vistas, but above all, they form a unique dynamic
perspective.
In the second year, students were thought more about construction, and climate, however, this year also emphasized the urban scale of buildings. Apart from urbanism, this included designing apartments, and in special to embed renovtion in our designs. Therefore, in the final design assignment of this year, we were asked to renovate an appartment block, by densifying it and, making it more energy neutral. The design that I came up with intended to break with the "wall" structure, of the former site, were the appartments and greenery were stricly sepperated, which invited people not to come out of their homes. My design focussed on bringing back the uniqueness of people and their dwellings. It differentiated the by adding a stepwise orientation of appartments, and altering the floor plans to include a mix of target groups. So no dwelling would be the same anymore. Furthermore by including greenery the environment was more attracting and also contributing to the sustainability of the building. Since in the summer most sun would be blocked, while in winter with no leaves the limited amount of sunlight will reach the building. To realize this an irrigration system (which provided plants and trees with water) was designed in the facade. The mythical city of babylon was my inspiration for this. brought back in this. This project was also rewarded with an 8.